

簡介
襯氟視鏡又名襯里視鏡,國家執(zhí)行標準(HG/T21622-1990).用以觀測管路或設備中單元流體的流量、色澤、氣泡、結晶情況,直接監(jiān)控化工工藝流程,有利于指導操作。視鏡體采用碳鋼精鑄,內襯氟塑料(F46), 鏡片選用優(yōu)質鋼化玻璃,具有的耐腐蝕性能和機械強度,且有外型美觀、強度高、經久耐用的特點。廣泛使用于石油、化工、農藥、染化、制酸制堿等行業(yè),是目前防腐設備理想的選擇。
襯氟視鏡相關產品:氣動襯氟球閥 電動襯氟球閥 襯四氟蝶閥 襯四氟補償器

型號意義
例:SJ41F-10C-100
SJ—視鏡類型代號
4—連接型式為法蘭
1—結構型式為直通式
F—襯里材料為氟塑料
10—公稱壓力為1.0MPa
C—視鏡體材料為碳鋼
100—公稱通徑為100mm

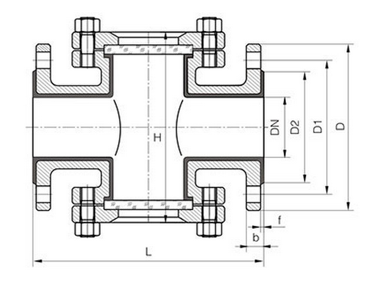
結構圖

連接尺寸
公稱通徑 | PN16(1.6MPa) | 參考值 | ||||||||
DN(mm) | NPS(inch) | L | D | D1 | D2 | b | f | Z-Фd | H | W(Kg) |
15 | 1/2 | 160 | 95 | 65 | 45 | 14 | 2 | 4-Ф14 | 103 | 2.8 |
20 | 3/4 | 160 | 105 | 75 | 58 | 14 | 2 | 4-Ф14 | 112 | 3.5 |
25 | 1 | 160 | 115 | 85 | 68 | 14 | 2 | 4-Ф14 | 122 | 4.5 |
32 | 1 1/4 | 180 | 135 | 100 | 78 | 16 | 3 | 4-Ф18 | 130 | 6 |
40 | 1 1/2 | 210 | 145 | 110 | 88 | 16 | 3 | 4-Ф18 | 140 | 7.5 |
50 | 2 | 230 | 160 | 125 | 102 | 16 | 3 | 4-Ф18 | 140 | 9.5 |
65 | 2 1/2 | 240 | 180 | 145 | 122 | 18 | 3 | 4-Ф18 | 170 | 15 |
80 | 3 | 280 | 195 | 160 | 138 | 20 | 3 | 8-Ф18 | 190 | 20 |
100 | 4 | 350 | 215 | 180 | 158 | 20 | 3 | 8-Ф18 | 210 | 29 |
125 | 5 | 390 | 245 | 210 | 188 | 22 | 3 | 8-Ф18 | 250 | 45 |
150 | 6 | 400 | 280 | 240 | 212 | 24 | 3 | 8-Ф23 | 265 | 85 |
200 | 8 | 410 | 335 | 295 | 268 | 26 | 3 | 12-Ф23 | 300 | 100 |